丹麥,埃斯比約,燈籠海事中心 / Snohetta
世界建筑
02-08
2023
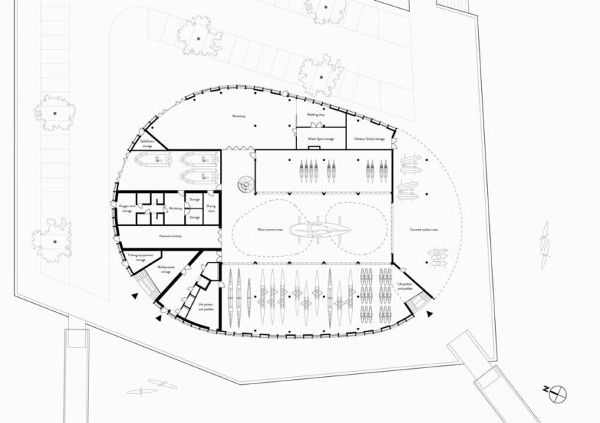
埃斯比約的海事中心向公眾敞開大門,照亮了丹麥的海港城市。在2019年的設計競賽之后,WERK Arkitekter和Sn?hetta的獲勝方案為該地區引入了一個聚集中心和建筑地標。命名為“燈籠”的海事中心將作為共享空間,具有多種功能,包括水上運動俱樂部和社交空間。該建筑采用了圓形的開放式設計,可以從不同的角度進入,邀請年輕人和老年人進行活動、參與和互動。更具體地說,該方案容納了船只存儲、培訓設施、大型車間空間和其他社會功能,成為海事活動的專用中心。
WERK Arkitekter公司的創意總監Thomas Kock說:“我們的目標是創造一個獨特的目的地,照亮丹麥西海岸,使每個人都能找到他們在海上的新社區”。
該設施的下層通過一座橋與大海直接相連,承載著船只的存儲和車間空間。上層容納了各種機構,如賽艇、皮劃艇、帆船、潛水和鐵人三項俱樂部,以及公共區域、教育中心和培訓設施。不同尺寸的開口穿透了外墻,讓豐富的日光灑在室內。當太陽落山時,溫暖的光芒使該中心充滿活力,從遠處看就像一座漂浮的燈塔。
燈籠將當地的各個協會聚集在共同的屋檐下,它結合了社會和體育相關的空間。海事中心為每個人提供了空間;從經驗豐富的潛水員或專業皮劃艇運動員到捕蟹學校班級或隨機路人。Sn?hetta公司的高級建筑師和項目經理Foray說:“燈籠海事中心邀請每個人都來窺探海洋生活,并向外看到大海的無盡地平線”。
燈籠海事中心的愿景是創造一個將詩意與實用相結合的空間,它的目的是在令人著迷和永不停息的海洋運動與實際的日常瑣事之間找到一個平衡。正如Sn?hetta的官方新聞稿所說:“美麗與原始、優雅與堅固之間的共生”。
該建筑用堅固的體量,在周圍新的大壩被洪水淹沒的情況下,可以創造出對強風和水的庇護。因此,直到第一層的結構是由混凝土制成的,一次澆筑完成,而其余部分使用木材,這增加了其對惡劣天氣條件的抵抗力。在整個中心,游客可以找到受保護的空間,可以逗留和社交,也可以欣賞大海的景色。一個升降的、可供公眾使用的露臺是項目的核心,邀請客人聚集在一起,改變關于海洋和海洋時間的經驗。在免受惡劣氣候影響的情況下,該中心引入了自然采光的社交中心,帶來一種開放和包容的感覺。
項目信息:
名稱:燈籠海事中心
建筑師:WERK Arkitekter| @werk_arkitekter 和 Sn?hetta| @snohetta
面積:約2800平方米(約3800平方米包括露臺和船庫)。
地點:丹麥,埃斯比約
客戶:埃斯比約市政當局
材料:約65公里長的歐洲熱處理過的松樹樹木,用于建筑的外墻和屋頂建設。
攝影:?wichmann+bendtsen photograph | @wichmannbendtsen




















